Circa

Circa

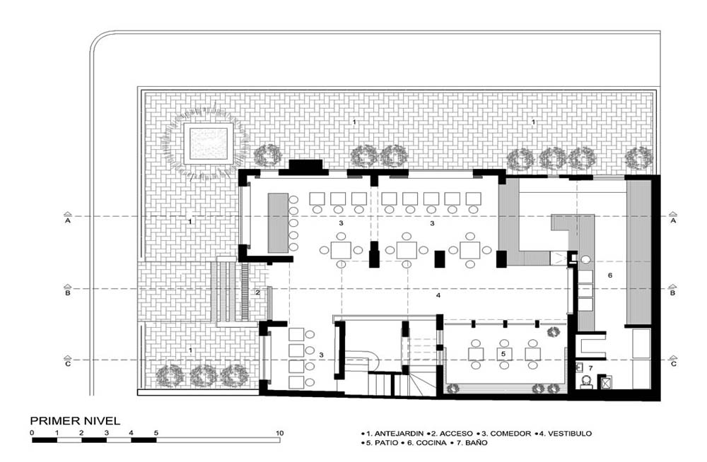
La recuperación de una vivienda de conservación al uso de un restaurante gourmet es el acierto de este proyecto. Ubicado en uno de los barrios con mayor historia de Bogotá, el nuevo planteamiento logra con sus espacios incorporarse a la tradicional casa sin alterar de manera significativa su esencia arquitectónica.

DSC00312 copia

CIRCA-TRIPLE

circa_001 circa_002 circa_003

Proyecto: Guillermo Arias – Ernesto Puente. 2003-2004